140 Main Street #1
$525,000
3 bd 2 ba 1,600 sqft
140 Main Street #1
Mars Hill, NC 28754
Property Type
Residential
Year Built
2026
Lot Size
Garage
1 spaces

About This Property

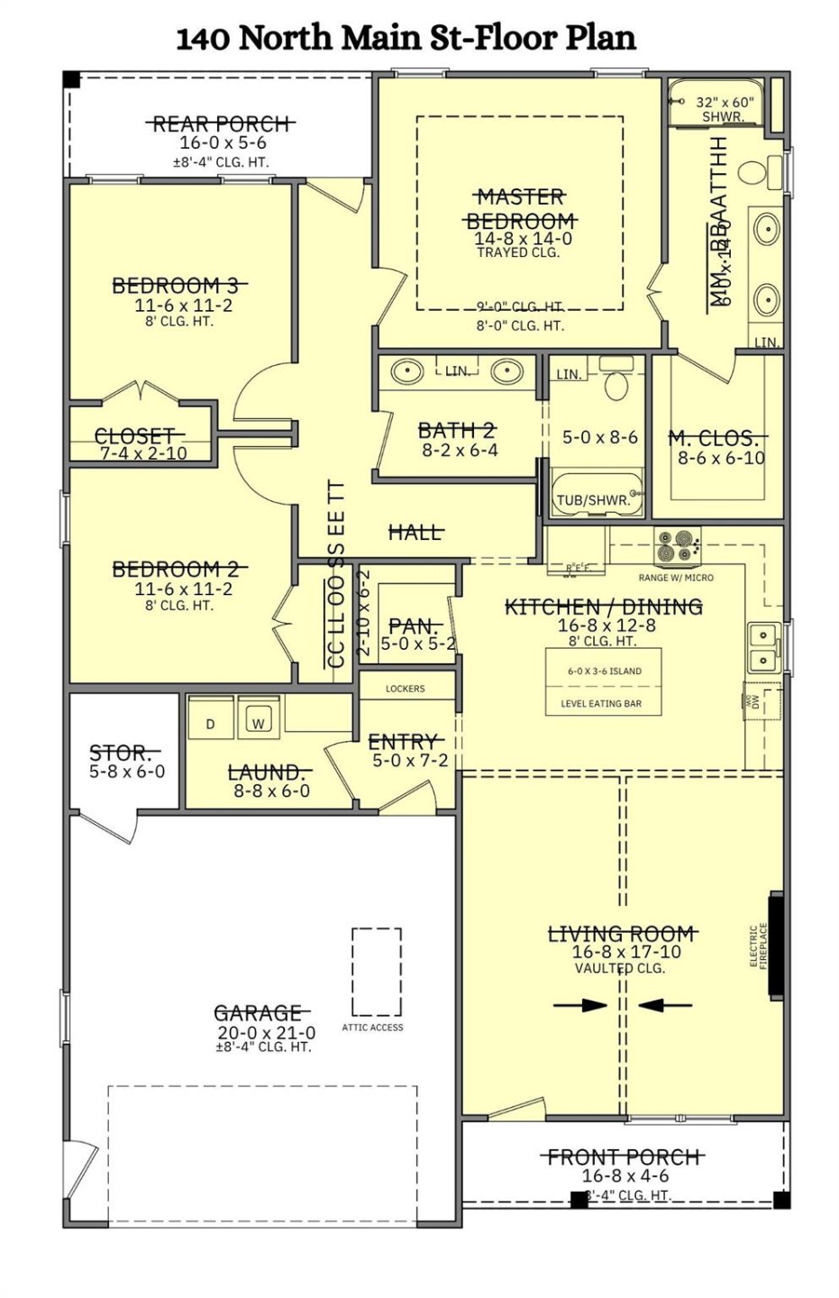
Very rare opportunity to own a brand new home in the heart of downtown Mars Hill. Thoughtfully designed for easy, one level living, this 3 bedroom, 2 bath home offers a one step entry, smooth mobility friendly flooring, and a layout that lives beautifully now and for years to come. Inside, the open living, dining, and kitchen area feels bright and welcoming with vaulted ceilings, an electric fireplace, and a natural flow for everyday living or gathering. The primary suite is peaceful and practical, with a spacious walk in closet, double vanity, and beautiful walk in tile shower. Every detail was chosen to feel fresh, warm, and timeless with clean finishes, natural textures, and modern lighting that complement the mountain setting. Enjoy the covered front porch with year round views of Bailey Mountain. The covered back deck offers another quiet place to enjoy the mountain air, with winter views of Craggy Gardens. The oversized one car garage provides room for storage, tools, hobbies, or a small work space, plus a dedicated storage closet for the things you want tucked neatly away. The location is where the magic is. Live right on Main Street in the charming town of Mars Hill, where you can walk to restaurants, the post office, medical offices, Mars Hill University, the local theater, and downtown events. Don’t miss First Fridays, the Bailey Mountain Cloggers, or the everyday joy of living in a small mountain town that still feels like a community. Step outside and enjoy access to one of Mars Hill’s favorite traditions, the famous 3 mile Loop, a beloved in town route that connects you to the rhythm of the neighborhood's and leads toward The Bailey Mountain Preserve. Bailey Mountain is one of the town’s treasured landmarks, offering 300 acres of conservation land, miles of trails, mountain views, and protected green space for generations to enjoy. This location also puts you close to so much of what makes Western North Carolina special. Downtown Marshall?, Hot Springs, Weaverville, and Burnsville. 20 min to Asheville and 45 min to Johnson City, TN, giving you easy access to two vibrant regional hubs, both with regional airports. Hatley Pointe Mountain Resort is about 20 minutes away, with skiing, dining, and a lift access mountain bike park planned for 2026. River rafting, river floating, biking, hiking, local food, mountain views, and small town events are all part of everyday life here. Homes like this simply do not come along often: brand new construction, Main Street location, one level living, covered outdoor spaces, mountain views, garage storage, and a front row seat to downtown Mars Hill life. Sister home next door is also available, creating a unique opportunity for buyers looking for nearby living, investment potential, or simply two beautiful new homes in one of Madison County’s most special small towns.

Property Details

Interior

Bedrooms
3
Bathrooms
2
Living Area
1,600 sqft

Exterior & Lot

Year Built
2026
Garage Spaces
1

Location

Subdivision
None
County
Madison
ZIP Code
28754

Financial

Listing Terms
Cash, Conventional, USDA Loan, VA Loan

Utilities

Utilities
Cable Available, Electricity Connected, Fiber Optics, Satellite Internet Available
Sewer
Public Sewer

Schools

Elementary
Mars Hill
Middle School
Madison
High School
Madison

Interior Features

Drop Zone, Kitchen Island, Open Floorplan, Pantry, Storage, Walk-In Closet(s), Other - See Remarks

Appliances

Dishwasher, Electric Cooktop, Electric Oven, Electric Water Heater, ENERGY STAR Qualified Refrigerator, Refrigerator with Ice Maker

Patio & Porch Features

Covered, Deck, Front Porch, Rear Porch

Lot Features

Sloped, Wooded, Views, Other - See Remarks

Location

Listing Information

MLS #
CAR4375742
Listing Agent
Carrie Lee Hoffman
Listing Office
RE/MAX Executive
Listed Date
Apr 29, 2026
Jonathan Jackson
Jonathan Jackson
Realtor®, Broker in Charge

Contact Jonathan Jackson About This Property

Interested in 140 Main Street #1? Send us a message and we'll get back to you.

Your information will be kept confidential and used only to respond to your inquiry.