+43 more
/ 48
+38
$1,150,000
5 bd
4 ba
4,701 sqft
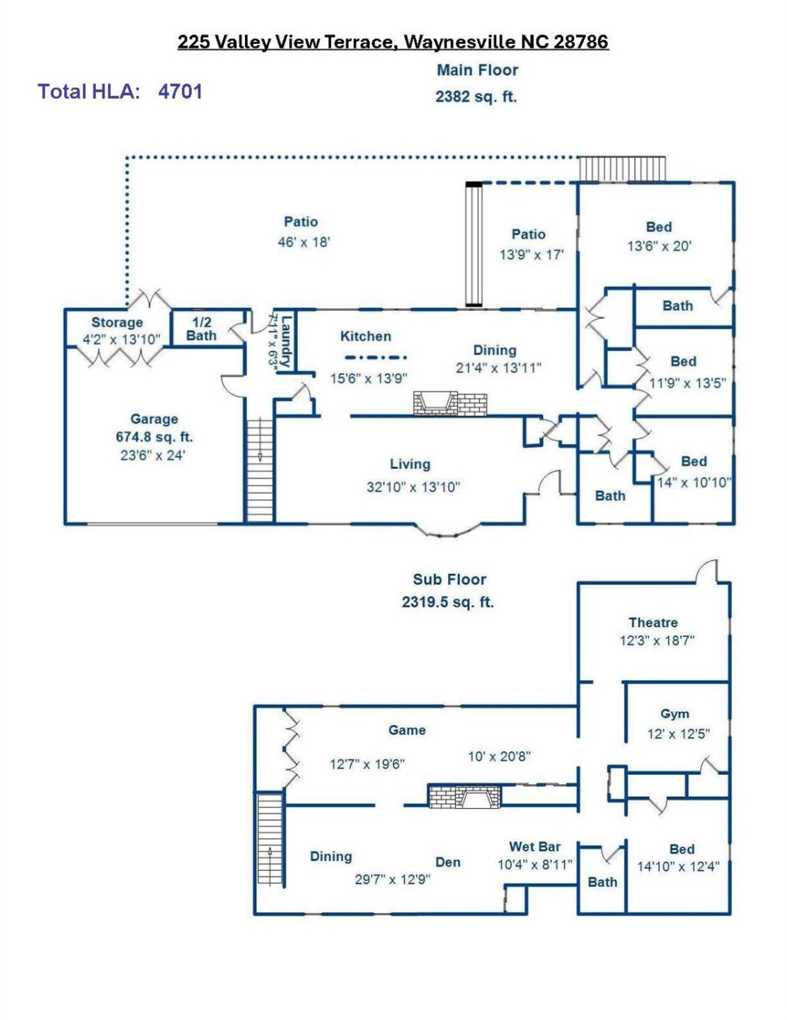
225 Valley View Terrace
Waynesville, NC 28786
Active
1 days on market
Property Type
Residential
Year Built
1968
Lot Size
—
Garage
2 spaces
About This Property
Experience elevated mountain living with the rare combination of in-town convenience and a true, down-to-the-studs renovation in this exceptional Waynesville property. Completely reimagined from 2022–2024, this home offers the peace of mind and quality of essentially new construction with every detail thoughtfully upgraded.
Set on a level acre with year-round mountain views, the home showcases soaring cathedral ceilings across the living, great room, and kitchen—creating a bright, open, and inviting atmosphere. Two beautifully appointed kitchens feature quartz countertops and modern finishes, complemented by custom-tiled bathrooms and durable luxury vinyl flooring throughout. Designed for both everyday comfort and entertaining, the flexible layout includes 5 bedrooms, a dedicated theater room, game room, second kitchen/wet bar, and additional flex space to suit your needs. Step outside to enjoy a spacious patio, established garden, fruit trees, and a fire pit—perfect for relaxing or hosting under the stars. Major system upgrades add lasting value, including dual-zone HVAC, a 2020 roof, three propane fireplaces, and updated appliances including dryer, range, and water heater. A 2-car garage with additional storage completes the package. Furniture is available, making this a potential turnkey opportunity. All of this just 2–3 miles from downtown Waynesville, with Spectrum high-speed internet and TV available.
Set on a level acre with year-round mountain views, the home showcases soaring cathedral ceilings across the living, great room, and kitchen—creating a bright, open, and inviting atmosphere. Two beautifully appointed kitchens feature quartz countertops and modern finishes, complemented by custom-tiled bathrooms and durable luxury vinyl flooring throughout. Designed for both everyday comfort and entertaining, the flexible layout includes 5 bedrooms, a dedicated theater room, game room, second kitchen/wet bar, and additional flex space to suit your needs. Step outside to enjoy a spacious patio, established garden, fruit trees, and a fire pit—perfect for relaxing or hosting under the stars. Major system upgrades add lasting value, including dual-zone HVAC, a 2020 roof, three propane fireplaces, and updated appliances including dryer, range, and water heater. A 2-car garage with additional storage completes the package. Furniture is available, making this a potential turnkey opportunity. All of this just 2–3 miles from downtown Waynesville, with Spectrum high-speed internet and TV available.
Property Details
Interior
- Bedrooms
- 5
- Bathrooms
- 4
- Living Area
- 4,701 sqft
Exterior & Lot
- Year Built
- 1968
- Garage Spaces
- 2
Location
- Subdivision
- None
- County
- Haywood
- ZIP Code
- 28786
Financial
Utilities
- Utilities
- Cable Connected
- Sewer
- Public Sewer
Schools
- Elementary
- Hazelwood
- Middle School
- Waynesville
- High School
- Tuscola
Interior Features
Breakfast Bar, Entrance Foyer, Kitchen Island, Open Floorplan, Pantry, Wet Bar
Appliances
Dishwasher, Gas Range, Microwave, Refrigerator, Washer/Dryer
Patio & Porch Features
Front Porch, Patio
Lot Features
Orchard(s), Level, Views
Location
Listing Information
- MLS #
- CAR4371369
- Listing Agent
- Jaci Reynolds
- Listing Office
- RE/MAX Executive
- Listed Date
- Apr 18, 2026
Contact Brian Deacon About This Property
Interested in 225 Valley View Terrace? Send us a message and we'll get back to you.